Tällä viikolla luottamuselimissä: Loviisa Campingiin hirsisauna?

Kaupungin lippu Raatihuoneen tornissa Stadsfkagga i rådhustornet

Huhtikuun viimeisellä viikolla 2019 Loviisan päättäjät käsittelevät muun muassa leirintäalueen saunan rakentamista ja Seurahuoneen kunnostusta.

Kaupunginhallitus kokoontuu pääsiäisen jälkeen poikkeuksellisesti tiistaina 23.4. Hallituksen esityslistalta löytyvät tällä kertaa esimerkiksi perusturvakeskuksen tuleva organisaatiouudistus.

Kaupunginhallitus 23.4.2019

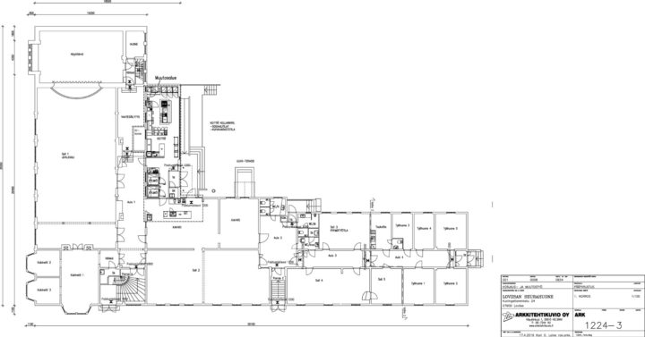
Elinkeino- ja infrastruktuurilautakunnan kokouksen yhtenä mielenkiintoisimmista aiheista voidaan pitää Seurahuoneen eli entisen pääkirjaston remontin pääpiirustusten ja kustannusarvion hyväksymistä. Kaupunginvaltuusto hyväksyi hankesuunnitelman 20.3.2019. Nyt hankkeen arkkitehtisuunnittelusta vastaava Arkkitehtikuvio Oy on laatinut lopulliset suunnitelmat.

Samassa lautakuntakokouksessa pohditaan myös valtuustoaloitteen muodossa tullutta ehdotusta saunan rakentamisesta Loviisa Campingin leirintäalueelle. Leirintäalueen palvelurakennuksessa sijainnut sauna purettiin huonokuntoisena ja viime kesänä alueella ei ollut saunomismahdollisuutta.

Asemakaavan mukaan saunan sijoitukselle on kaksi vaihtoehtoa. Toinen paikka on matalan alueen tulvariskin kannalta parempi, mutta kaukana rannasta ja lähellä alueen ajotietä. Toinen paikka on lähellä rantaa pienessä kaivetussa lahdessa, mutta sillä paikalla rakennuksen lattiaa ei voida nostaa niin korkealle että se täyttäisi tulvantorjuntavaatimukset. Jotta saunassa ei olisi rakenteita joita korkea nousuvesi voisi vahingoittaa, tulisi rakennuksessa olla hirsiseinät ja lautalattia. Valitettavasti sauna ei valmistu ennen syksyä 2019.

Elinkeino- ja infrastruktuurilautakunta 25.4.2019

Myös kasvatus- ja sivistyslautakunta kokoontuu tällä viikolla. Lautakunta muun muassa seuraa omien vastuualueiden talousarvion toteutumista.

Kasvatus- ja sivistyslautakunta 24.4.2019

Kasvatus- ja sivistyslautakunnan suomenkielinen koulutusjaoston kokouksessa 25.4. perehdytään Harjurinteen koulun vanhan osan korjaussuunnitelmien tilaratkaisuihin. Esimerkiksi henkilöstöhuone siirretään koko koulun kannalta keskeisemmälle paikalle koulurakennuksen peruskorjauksessa.

Kasvatus- ja sivistyslautakunnan suomenkielinen koulutusjaosto 25.4.2019